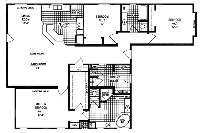
Homes | Custom Villa-B366CT